SCIENCE AND DIDACTICS

3D SCANNING – PHASES

Applying new technologies to collect and process data about buildings is essential, especially in case of historic buildings, whose specifics and structure are unique and often difficult to analyse with the use of traditional methods. We wanted to benefit from the potential of the tenement house at Wroniecka 23 and learn as much as possible about its history, that’s why we decided to conduct 3D laser scanning.

This tool enabled us to create the authentic design documentation that includes precise spatial data about the existing state. Scanning revealed unknown details about the past of the building and showed transformations it had experienced.

We created the so called point cloud which was the basis for creating a 3D model. It resembled the detailed structure of bricks and geometry of walls in this irregular fourteenth-century building. However, we did not use the scanning just in the phase of survey. The next step was the scanning in the renovation phase. It allowed us to precisely locate the position of systems fixed during the renovation works and e.g. hidden in the floor. We developed the existing 3D model by adding data on the fixed elements of technical infrastructure. The information gathered in this way is essential for proper functioning of the house and future modernisations.

Another 3D scanning was done after all the renovation works were finished. The new model shows all the installed systems. The data gathered during all three scanning processes create a very detailed design documentation which enables us to precisely monitor all technical systems operating in the building.

The scanning of the house has even become an artistic inspiration! Leszek Możdżer, one of the greatest Polish contemporary pianists and jazz composers, created a soundtrack to illustrate the animation made on the basis of the point cloud. His music is an example of the interdisciplinary impact of 3D scanning on various sectors, also artistic ones.

Listen here…

RESEARCH

First research included the analysis of archived materials and documentation about the house. We collected old layouts, photos and reports. They were a starting point for further research planning and referred to valuable historic information. We looked for elements of the primary construction purpose, diagnosed characteristic features of consecutive periods of history, hierarchised the structure and relations between particular components and analysed a multidirectional strategy of the long-lasting and solid security of the building. In total, we conducted 9 surveys: static, architectural, conservation, archaeological, historical, iconographic, dendrochronological, technical and 3D scanning of details with complex geometry. The results of this research became the basis for design works.

3D SCANNING OF A DETAIL WITH COMPLEX GEOMETRY

This scanning helped us identify elements that require more precise recognition and archiving. We scanned wooden beams on the first floor. Thanks to the dendrochronological analysis we were able to determine that the wood comes from 1591. We also scanned the fragment of the gothic wall and the renaissance fragment of the lunette which is part of the historic layer.

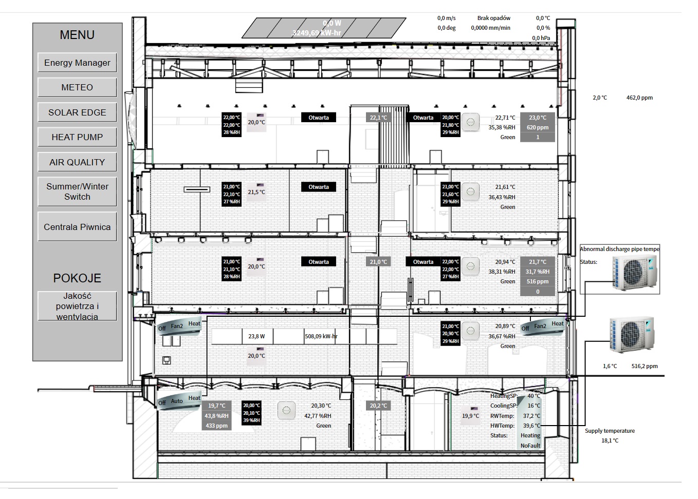
DATA MONITORING

BMS allows us to record the measured data. It gives us the insight into various parameters in a given time horizon and enables us to conduct research and analyses regarding energy consumption in historic buildings adapted to valid provisions of law and present climate conditions. We can also optimise system settings to decrease energy consumption and provide top quality of air in the house.